Multi-Generational Duplex

Design Studio II - Second Semester Design Student

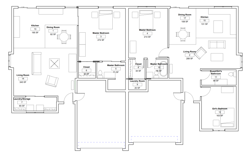
We were required to renovate a multi-generational duplex that follows ADA standards, showing the accessibility throughout both sides. My clients were the Smith and the Adams families. Roger Smith is a retired engineer from the Navy and is paralyzed from the waist down due to an accident on his ship. I was asked to create their side of the duplex to accommodate to his disability and make everything accessible for him. I was able to utilize Adobe Photoshop to create a realistic perspective at the spaces I designed.