Rise and Shine Cafe

Design Studio III - Third Semester Design Student

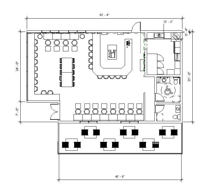
We were asked to renovate a cafe located in Savannah, Georgia and were given a specific floor plan to remodel. Before designing this project, we spent time researching the original cafe in Savannah, what their target audience is and how we can improve it. We created our own origami design that will be incorporated into our design in whatever way we chose. Using soap, we explored different origami shapes and layouts that we could use to construct our desired area.